• Promenada 13, 22000 Sremska Mitrovica, Srbija
  • office@geodigit.rs
  • +381 22 62 45 83
  • +381 22 21 50 240

USLUGE GIS-A

DIGITALIZACIJA I DOKUMENTACIJA

PRAKTIČNO ZNANJE

Digitalizacija podrazumeva proces pretvaranja fizičkih mapa, crteža ili drugih analognih podataka u digitalne formate. Ovo se radi kako bi se stvorile digitalne prezentacije geografskih karakteristika i informacija. Postoje različite metode za digitalizaciju geopodataka, uključujući ručnu digitalizaciju pomoću digitalnih tabli, digitalizaciju unutar GIS softvera i automatizovane metode poput analize satelitskih i vazdušnih snimaka. Digitalizovani geopodaci mogu se koristiti za mapiranje, analizu i vizualizaciju u GIS aplikacijama, urbanom planiranju, praćenju životne sredine i drugim oblastima.

Geoprostorni skupovi podataka redovno moraju biti održavani i ažurirani kako bi se osigurala njihova tačnost i relevantnost. To podrazumeva ispravljanje grešaka, dodavanje novih podataka i revidiranje postojećih informacija. Ažuriranja se mogu zasnivati na terenskim istraživanjima, podacima dobijenim iz daljinskog snimanja, podacima koje korisnici doprinose ili podacima iz javnih izvora. Ažurirani skupovi podataka su od suštinskog značaja za donošenje odluka, odgovor na katastrofe, planiranje infrastrukture i druge primene koje se oslanjaju na tačne geografske informacije.

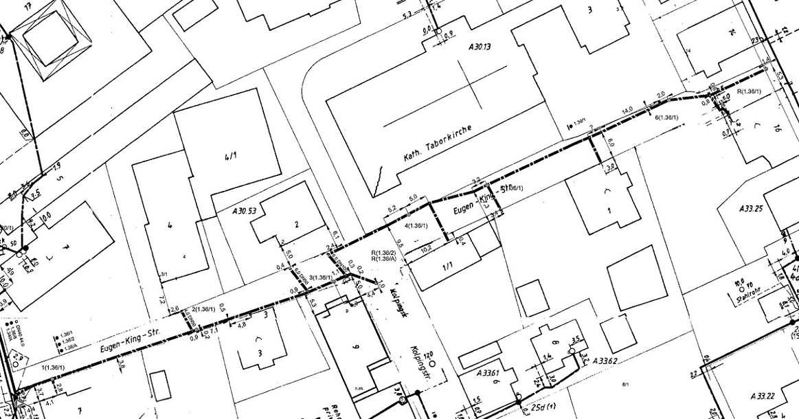
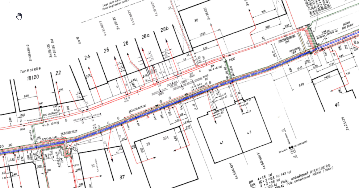
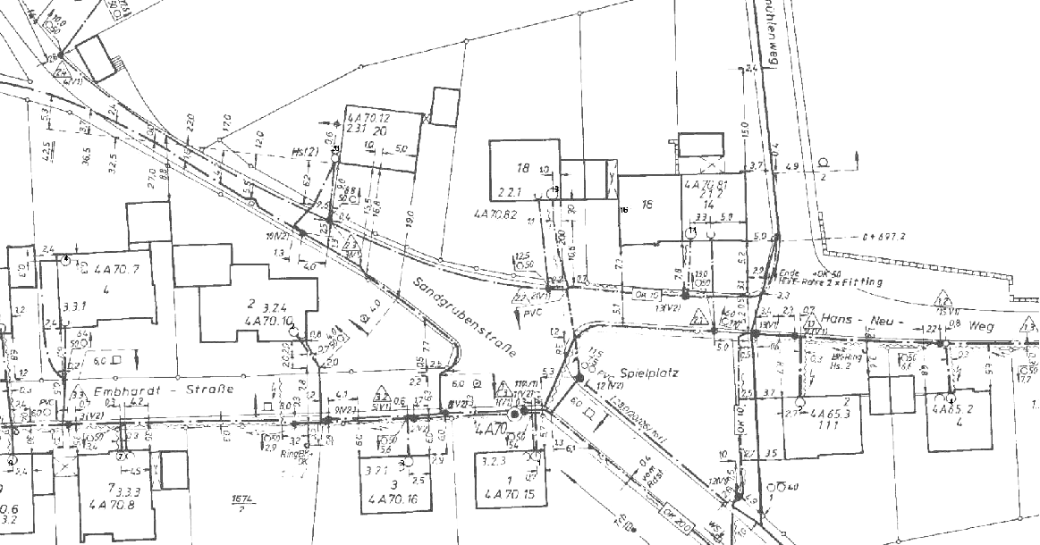
Dokumentacija linijske infrastrukture podrazumeva stvaranje detaljnih zapisa o linijskim objektima poput puteva, železnica, cevovoda i distibutivnih mreža. Ova dokumentacija može obuhvatiti informacije o atributima kao što su lokacija, vrsta, stanje, istorija održavanja i još mnogo toga. Tačna dokumentacija o linijskoj infrastrukturi je od suštinskog značaja za upravljanje i izgradnju same infrastrukture, praćenje imovine i planiranje održavanja.

Konvertovanje analognih podataka u digitalne formate podrazumeva transformisanje fizičkih izvora podataka, kao što su papirne mape ili fotografije, u digitalne fajlove koji se mogu čuvati i analizirati u GIS softveru ili bazama podataka. Ovaj proces može uključivati skeniranje, georeferenciranje, kao i ručnu ili automatizovanu digitalizaciju. Digitalni formati omogućavaju lakše čuvanje podataka, analizu i integraciju u GIS sisteme, čime se omogućava bolje donošenje odluka i deljenje informacija.

Dokumentovanje inventara mreže predstavlja sveobuhvatan zapis o mrežnoj infrastrukturi, uključujući komponente i konfiguraciju mreže. Služi kao ključni izvor informacija za eksperte u svojoj oblasti, pomažući u rešavanju problema, nadogradnji i održavanju. Tačna i ažurirana dokumentacija unapređuje efikasnost, sigurnost i opšte upravljanje mrežom.

Digitalizacija analognih setova podataka katastra podrazumeva pretvaranje papirnih zemljišnih evidencija u digitalne formate. Ovaj proces poboljšava dostupnost, efikasnost i upravljanje podacima u nadležnim Službama katastrima nepokretnosti. Korišćenjem naprednih tehnologija, poput GIS-a, olakšava brže ažuriranje, unapređuje tačnost i podržava efikasno donošenje odluka u upravljanju katastarskim informacijama.

Digitalizacija i dokumentovanje linijske infrastrukture predstavljaju primarnu delatnost GeoDigita od samog početka.

Adresa

Promenada 13
22000 Sremska Mitrovica
Srbija

Kontakt

  • office@geodigit.rs
  • +381 22 62 45 83